Lagertank für Flüssigdünger:  AHL-Dünger und ASL-Dünger

Lagertank für Flüssigdünger

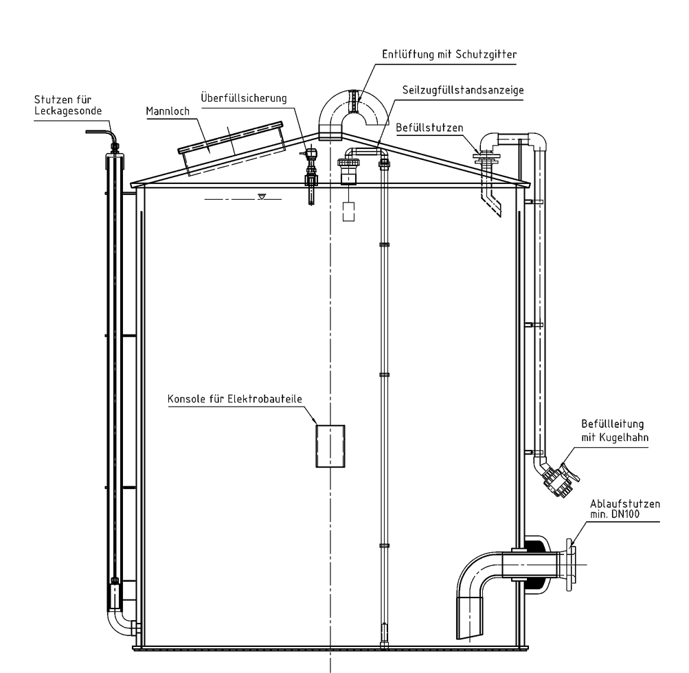
Doppelwandige Lagertanks für AHL- und ASL-Flüssigdünger

Sprechen wir heute von Flüssigdünger, ist meistens AHL (Ammoniumnitrat-Harnstoff-Lösung) oder ASL (Ammoniumsulfat-Lösung) gemeint. Flüssigdünger ist als wassergefährdender Stoff eingestuft und darf nicht in Abwasseranlagen, Gewässer oder in das Grundwasser gelangen.

Der Umgang mit Anlagen zum Lagern, Abfüllen und Umschlagen wassergefährdender Stoffe ist im Wasserhaushaltsgesetz (WHG) vorgeschrieben:
  • Lageranlagen müssen so beschaffen und betrieben werden, dass Flüssigkeiten nicht austreten können
  • Einwandige unterirdische Lageranlagen sind unzulässig
  • Lagertanks müssen mit einer Auffangwanne versehen werden oder doppelwandig sein
Hier finden unsere doppelwandigen Lagertanks für AHL- und ASL-Flüssigdünger ihren Einsatz!

Sie interessieren sich für die sichere Chemikalienlagerung? Dann informieren Sie sich hier über unsere Lagerbehälter und Tanklager für Chemikalien.

Impressionen: Lagertank für Flüssigdünger (AHL- und ASL-Flüssigdünger)

Ihr Ansprechpartner

Sie haben Fragen zu unseren Produkten?
Dann freuen wir uns auf Ihren Anruf!


Hier gelangen Sie zu Ihrem persönlichen Ansprechpartner.

Fragen? Wir freuen uns auf Ihren Anruf!

Kontakt Vertriebsinnendienst